

| 午前 (9:00~12:00) | 午後 (13:00~17:00) | 夜間 (18:00~22:00) |
|---|---|---|
| 1,600円 | 3,300円 | 4,050円 |
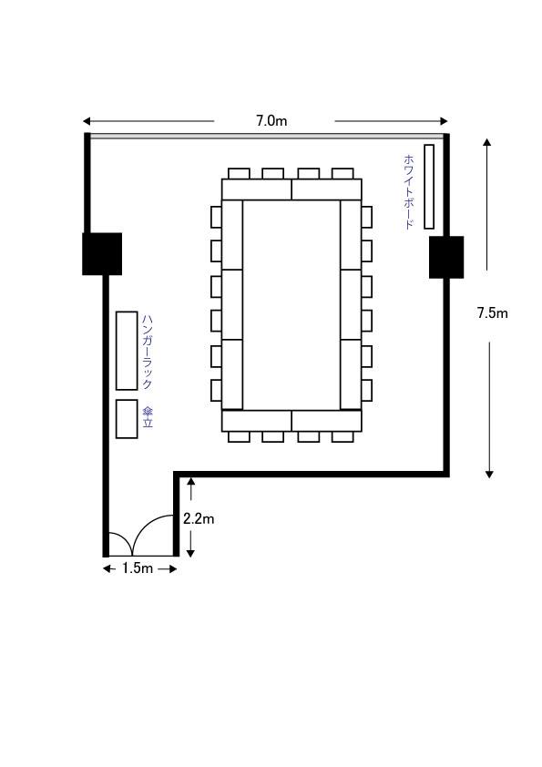
| 定員 | 20人 |
|---|---|
| 面積 | 54.77㎡ |
| 机 | 2人掛け 10台 ロの字形式 |
| 椅子・座席 | 20脚 |
| 備付備品 | ホワイトボード1台 ハンガーラック1台 傘立1台 案内板1台 |
| 床仕様 | ピータイル |
| 主な利用目的 | 総会、講演会、会議・研修、説明会、面接、学習会、書道、油絵、水彩画、水墨画・俳画、絵手紙、 手芸、華道、写真、着付け、フラワーアレンジメント、和裁、交流会(飲食なし) |
| その他 | マイク利用可 面積表記は、室内の倉庫、柱等も含むため、下部レイアウト図とは合致しない場合があります。 |
