facebook

施設貸出

施設一覧施設利用料金器具利用料金ご利用にあたって申込方法

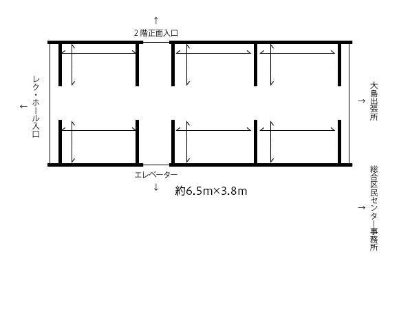
展示ホール 2F

  • 画像

ダンス・軽体操など禁止大きな音の禁止

利用日が2025年4月1日からの料金

利用料金

1区画(25㎡)につき2,300円
面積155㎡
(通路部分を含む)
1区画(3.8m×6.5m)×6区画
備付備品展示パネル
展示ケース
長机・椅子
主な利用目的展示
レイアウト図

空き状況を見る

前のページに戻る

貸出施設一覧

7F

6F

3F

2F