| 午前 (9:00~12:00) | 午後 (13:00~17:00) | 夜間 (18:00~22:00) | |
|---|---|---|---|
| 平日 | 3,700円 | 7,400円 | 9,350円 |
| 土・日・休日 | 4,400円 | 8,750円 | 11,000円 |
| 定員 | 230人 |
|---|---|
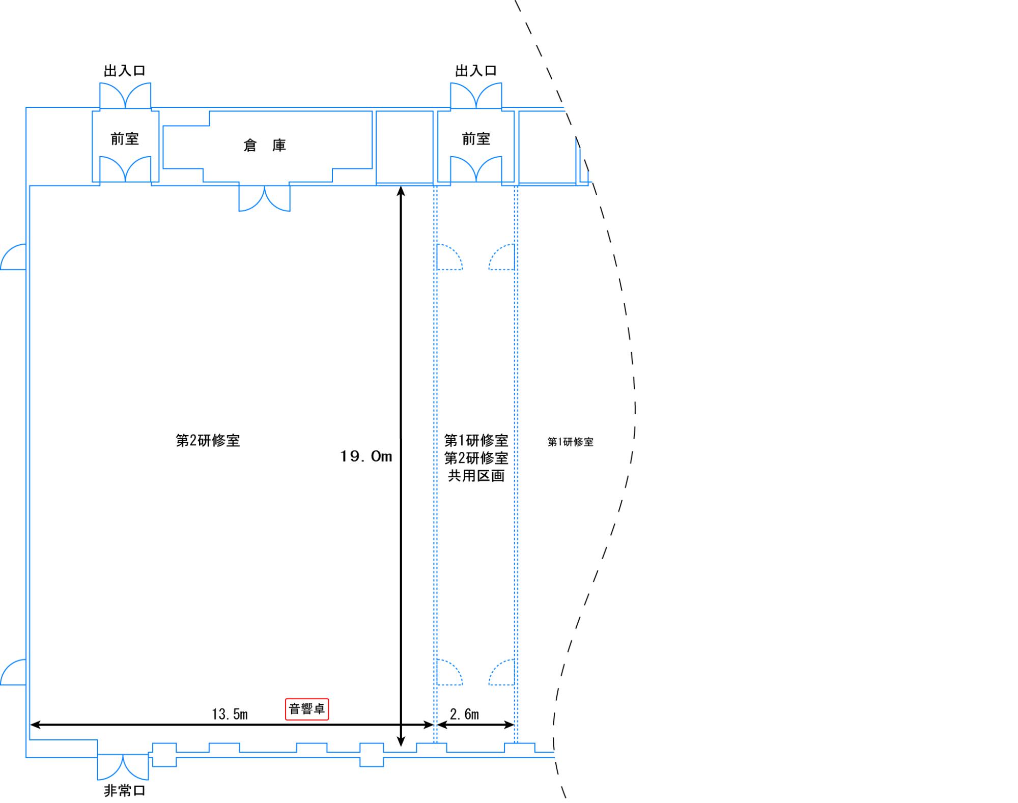
| 面積 | 268.3㎡ |
| 机 | 75台まで(倉庫内には42台収納。42台以上は要予約) |
| 椅子・座席 | 230脚まで |
| 施設の連結・分割 | 第1研修室と連結可能 第1研修室 |
| 備付備品 | ホワイトボード1台 ハンガーラック2台 傘立1台 天井吊下式スクリーン 音響卓セット(別料金) |
| 床仕様 | フローリング |
| 備考 | 【第1研修室と連結可】和太鼓不可。ティンパニー・大太鼓等を利用する際は第1研修室と連結してご利用ください。1室のみでの利用はできません。 |
| 主な利用目的 | 祝賀会、忘・新年会、歓送迎会、入学・卒業式、謝恩会、追悼式、入社式、大会、総会、楽団(打楽器なし)、楽団パート練習、歌・合唱・カラオケ、邦楽、民族楽器、演劇、バレエ、日本舞踊、ダンス(フラメンコ以外)、寄席、上映会、講演会、コンクール、会議・研修、説明会、学習会、書道、ヨガ・健康体操、気功・太極拳、囲碁・将棋、学習会、語学、文学、交流会(飲食あり) |
| その他 | 第1・2研修室を連結する場合、パーテーションの開閉は目安として約20~30分程かかります。 パーテーションの開閉は、利用者の方にお願いします。 パーテーション開閉および準備後片付等はご利用時間内にお願いします。 面積表記は、室内の倉庫、柱等も含むため、下部レイアウト図とは合致しない場合があります。 |
