facebook

施設貸出

施設一覧施設利用料金器具利用料金ご利用にあたって申込方法

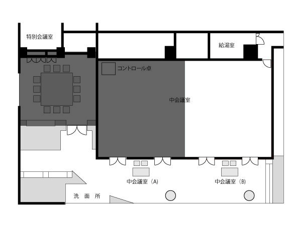
中会議室(B) B1F/会議室

  • 画像

ダンス・軽体操など禁止大きな音の禁止電波圏外
当該館のみ予約可

利用日が2025年4月1日からの料金

利用料金

午前
(9:00~12:00)
午後
(13:00~17:00)
夜間
(18:00~22:00)
1,800円3,700円4,550円
定員36人
78人(椅子のみ使用時)
36人(教室形式:椅子・テーブル使用時)
面積75.56㎡
2人掛け
18台
椅子・座席78脚
利用日3日前までにレイアウト図をご提出ください。
中会議室打合せ用レイアウト図面(PDF:380KB)
備付備品ホワイトボード1台
ビームライト16台(有料)
※音響設備は全面利用の場合のみ可
床仕様カーペット
主な利用目的総会、会議・研修、説明会、面接、学習会、ヨガ・健康体操、気功・太極拳、交流会(飲食あり)
レイアウト図

施設を予約する・空き状況を見る

前のページに戻る

貸出施設一覧

大ホール

1~4F

B1F

小ホール

B1F

練習室等

B2F

会議室

B1F

レストラン

B1F