| 午前 (9:00~12:00) | 午後 (13:00~17:00) | 夜間 (18:00~22:00) | |
|---|---|---|---|
| 平日 | 3,600円 | 7,200円 | 9,150円 |
| 土・日・休日 | 4,400円 | 8,750円 | 11,000円 |
| 定員 | 126人 |
|---|---|
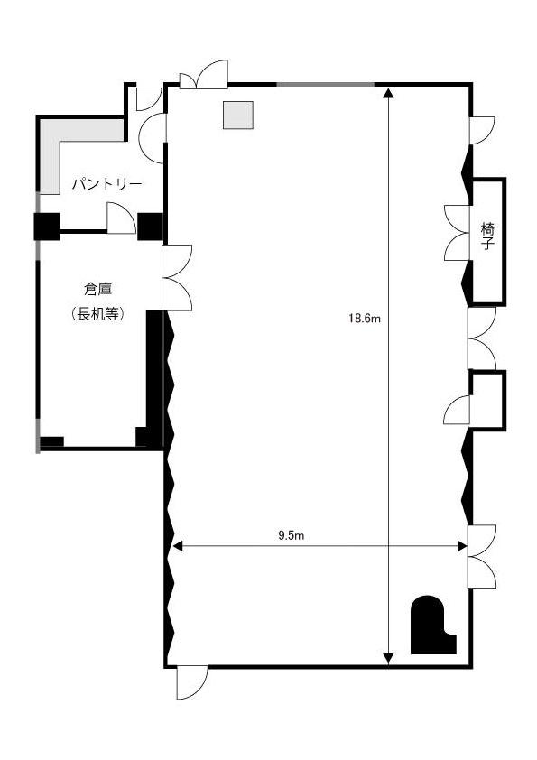
| 面積 | 199.18㎡ |
| 机 | 3人掛け 42台 倉庫に収納 |
| 椅子・座席 | 126脚 倉庫に収納 |
| 備付備品 | 移動式舞台4台 ホワイトボード2台 傘立て2台 案内板1台 鏡(壁面備付) グランドピアノ(有料) 音響卓セット/マイク2本付(有料) |
| 床仕様 | フローリング |
| 主な利用目的 | ※ホール付帯施設 ただし、ホールでの利用申込みが無い場合は6か月前から下記利用目的にて貸出可能 祝賀会、忘・新年会、歓送迎会、入学・卒業式、謝恩会、追悼式、入社式、大会、総会、ピアノ、歌・合唱・カラオケ、邦楽、楽団パート練習(弦・木管楽器)、演劇、バレエ、日本舞踊、ダンス(フラメンコ以外)、寄席、上映会、講演会、コンクール、会議・研修、説明会、面接、学習会、書道、 油絵、水彩画、水墨画・俳画、絵手紙、手芸、ヨガ・健康体操、気功・太極拳、囲碁・将棋、写真、着付け、フラワーアレンジメント、和裁、交流会(飲食あり) |
| その他 | 和太鼓・金管楽器不可 面積表記は、室内の倉庫、柱等も含むため、下部レイアウト図とは合致しない場合があります。 |
