facebook

亀戸文化センター施設貸出

施設一覧施設利用料金器具利用料金ご利用にあたって申込方法

第4楽屋 2F

  • 画像

ダンス・軽体操など禁止大きな音の禁止
ホール付帯施設当該館のみ予約可単独申込み不可

利用日が2025年4月1日からの料金

利用料金

午前
(9:00~12:00)
午後
(13:00~17:00)
夜間
(18:00~22:00)
700円1,300円1,650円
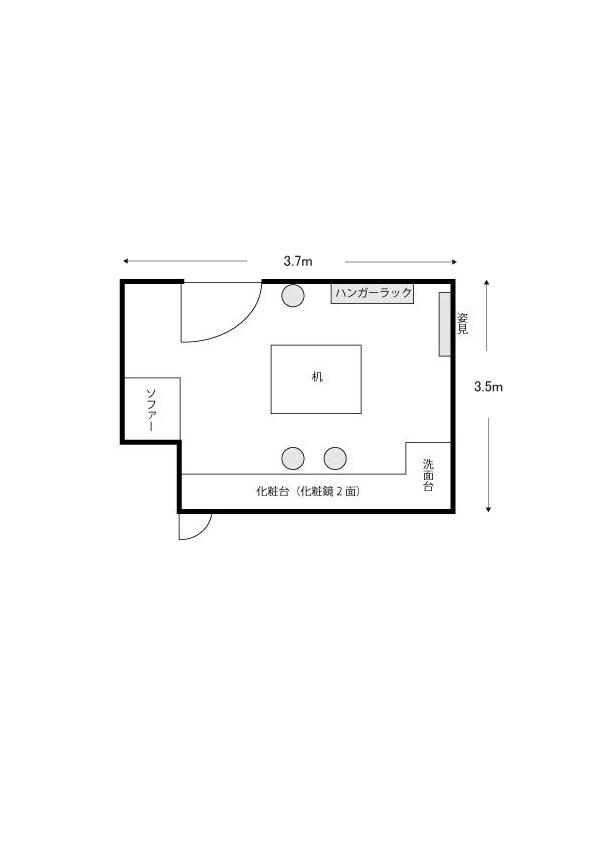
定員3人
面積14.1㎡
1台
椅子・座席3脚
備付備品化粧鏡2面
洗面台1面
ハンガーラック1台
床仕様カーペット
主な利用目的ホール利用者の控室(単独利用不可) 
その他マイク利用不可

面積表記は、室内の倉庫、柱等も含むため、下部レイアウト図とは合致しない場合があります。
レイアウト図

施設を予約する・空き状況を見る

前のページに戻る

貸出施設一覧

6F

5F

3・4F

2F