
| 午前 (9:00~12:00) | 午後 (13:00~17:00) | 夜間 (18:00~22:00) |
|---|---|---|
| 900円 | 1,800円 | 2,250円 |
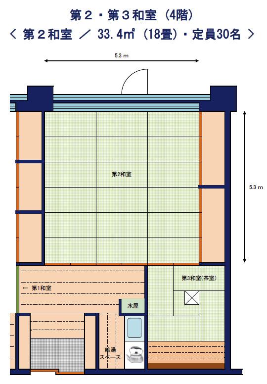
| 定員 | 30人 |
|---|---|
| 面積 | 33.4㎡ |
| 机 | 座卓4台 |
| 備付備品 | 座布団 案内板1台 |
| 備考 | 18畳 |
| 主な利用目的 | 演劇、日本舞踊、寄席、会議・研修、説明会、面接、学習会、書道、水彩画・俳画、絵手紙、手芸、茶道、華道、邦楽、演劇練習、ヨガ・健康体操、気功・太極拳、囲碁・将棋、写真、着付け、フラワーアレンジメント、和裁、文学、交流会(飲食なし) |
| その他 | 面積表記は、室内の倉庫、柱等も含むため、下部レイアウト図とは合致しない場合があります。 |
