

| 午前 (9:00~12:00) | 午後 (13:00~17:00) | 夜間 (18:00~22:00) |
|---|---|---|
| 1,250円 | 2,550円 | 3,400円 |
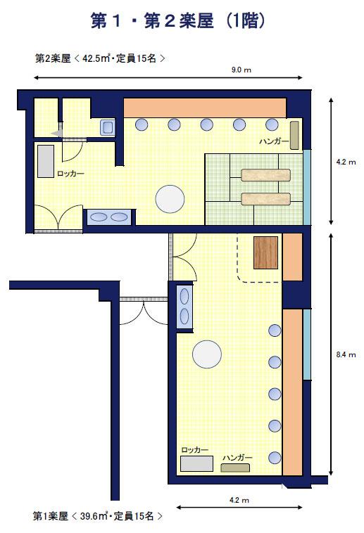
| 定員 | 15人 |
|---|---|
| 面積 | 39.6㎡ |
| 机 | 長机2台 丸机1台 |
| 椅子・座席 | 9脚 |
| 備付備品 | モニター 洗面化粧台 化粧台6台 姿見鏡 着替えスペース コインロッカー 10個 ハンガーラックラック1台 |
| 床仕様 | ビニル床 |
| 主な利用目的 | ホール利用者の控室(単独利用不可) |
| その他 | 面積表記は、室内の倉庫、柱等も含むため、下部レイアウト図とは合致しない場合があります。 |
