facebook

施設貸出

施設一覧施設利用料金器具利用料金ご利用にあたって申込方法

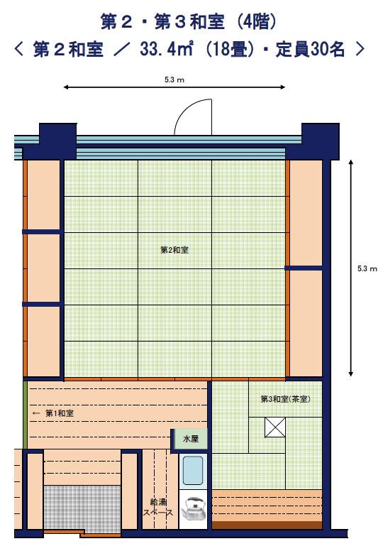
第3和室 4F/研修棟

  • 画像

ダンス・軽体操など禁止大きな音の禁止
単独申込み不可

利用日が2025年4月1日からの料金

利用料金

午前
(9:00~12:00)
午後
(13:00~17:00)
夜間
(18:00~22:00)
400円900円1,300円
定員10人
面積10.0㎡
施設の連結・分割第2和室と併用
主な利用目的茶道(第2和室との併用の場合のみ利用可能)
その他単独利用不可施設
第2和室との併用の場合のみ利用可能

面積表記は、室内の倉庫、柱等も含むため、下部レイアウト図とは合致しない場合があります。
レイアウト図

施設を予約する・空き状況を見る

前のページに戻る

貸出施設一覧

ホール棟

2F

1F

研修棟

4F

3F

2F

1F